Huurwoning Zeist

Warande 44, Zeist

Korte samenvatting

Locatie
Zeist
Huurprijs
€ 677,37
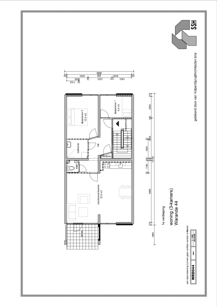
Type woning
Appartement
Oppervlakte:
56 m2
Kamers:
3
Slaapkamers:
2
Wachttijd:
(niet ingesteld)
Datum beschikbaar:
1 feb 2022
Maximaal inkomen:
€ 39.055,00
Status:
Verlopen

Omschrijving woning

Heb je niet zo’n behoefte aan de drukte van de stad? Dan is dit gemengde complex echt iets voor jou! De Warande ligt in een mooie, rustige en groene omgeving aan de Utrechtse kant van Zeist. Met de fiets ben je in een kwartier op het Utrecht Science Park, en in een half uurtje in de binnenstad van Utrecht. Er is trouwens een goede (nacht)busverbinding, dus die optie heb je altijd achter de hand! De Warande bestaat uit een mix van zelfstandige woningen en studentenkamers. Vlakbij het complex ligt een groot winkelcentrum, waar je terecht kunt voor je dagelijkse boodschappen. Bovendien ligt dichtbij de Warande een mooi bos waar je heerlijk kunt wandelen. Voorwaarden: Voorwaarden  Accepteer je deze woning, dan vragen wij je om je meest recente inkomensverklaring in te leveren. Dit is ook van toepassing voor een eventuele mede-aanvrager. Je inkomensverklaring kan je via ‘Mijn Belastingdienst’ downloaden. Lever naast je inkomensverklaring ook je laatste loonstrook/ uitkeringsspecificatie in. Let op SSH wijst de woning toe via passend toewijzen! Eenpersoonshuishouden: € 24.075 - € 40.765. Tweepersoonshuishouden: € 32.675 - € 45.014. Beschik jij of je eventuele mede-aanvragen op het moment dat je de woning krijgt aangeboden niet over dit document, dan bieden wij de woning aan de volgende kandidaat aan. Op onze website leest u meer over  inkomensvoorwaarden .

Kaart