Huurwoning Alblasserdam

Scheldeplein 33A, Alblasserdam

Korte samenvatting

Locatie
Alblasserdam
Huurprijs
€ 705,69
Type woning
Portiekwoning
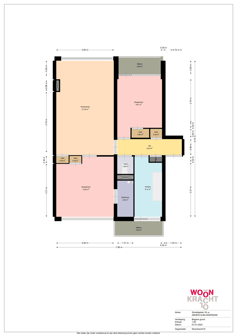
Oppervlakte:
60 m2
Kamers:
3
Slaapkamers:
2
Wachttijd:
(niet ingesteld)
Datum beschikbaar:
17 apr 2026
Maximaal inkomen:
€ 39.055,00
Status:
Verlopen

Omschrijving woning

Leuke portiekwoning met twee slaapkamers en een gesloten keuken. Er is geen lift in het complex. De woning is alleen bereikbaar via de trap. Het complex ligt in de gezellige wijk Kinderdijk.WoonomgevingDe woning is gelegen op loopafstand van openbaar vervoer, winkels,  diverse scholen en een park.IndelingLeuk appartement op de 1e etage met ruime lichte woonkamer. Er is zowel aan de voor- als achterzijde van de woning een balkon. De keuken, badkamer en het toilet worden gerenoveerd. Het is elektrisch koken.Vanuit de hal loopt u naar de slaapkamer, keuken, toilet en woonkamer. In het verlengde van de woonkamer ligt een slaapkamer. Vanuit deze slaapkamer heeft u toegang tot de doucheruimte.OverigeHuurprijs onder voorbehoud. Huurtoeslag aanvragen is mogelijk.Voor de woningtoewijzing hebben wij de meest recente inkomensverklaring of definitieve aanslag van de Belastingdienst nodig. U kunt deze opvragen bijde Belastingdienst via telefoonnummer 0800-05 43 of downloaden met uw Digi-D via www.mijn.belastingdienst.nl. Als u deze gegevens niet voor de gestelde termijn kunt overleggen, bieden wij u de woning niet definitief aan.

Kaart