Huurwoning Bodegraven

Rijngaarde 226, Bodegraven

Korte samenvatting

Locatie
Bodegraven
Huurprijs
€ 806,25
Type woning
Appartement
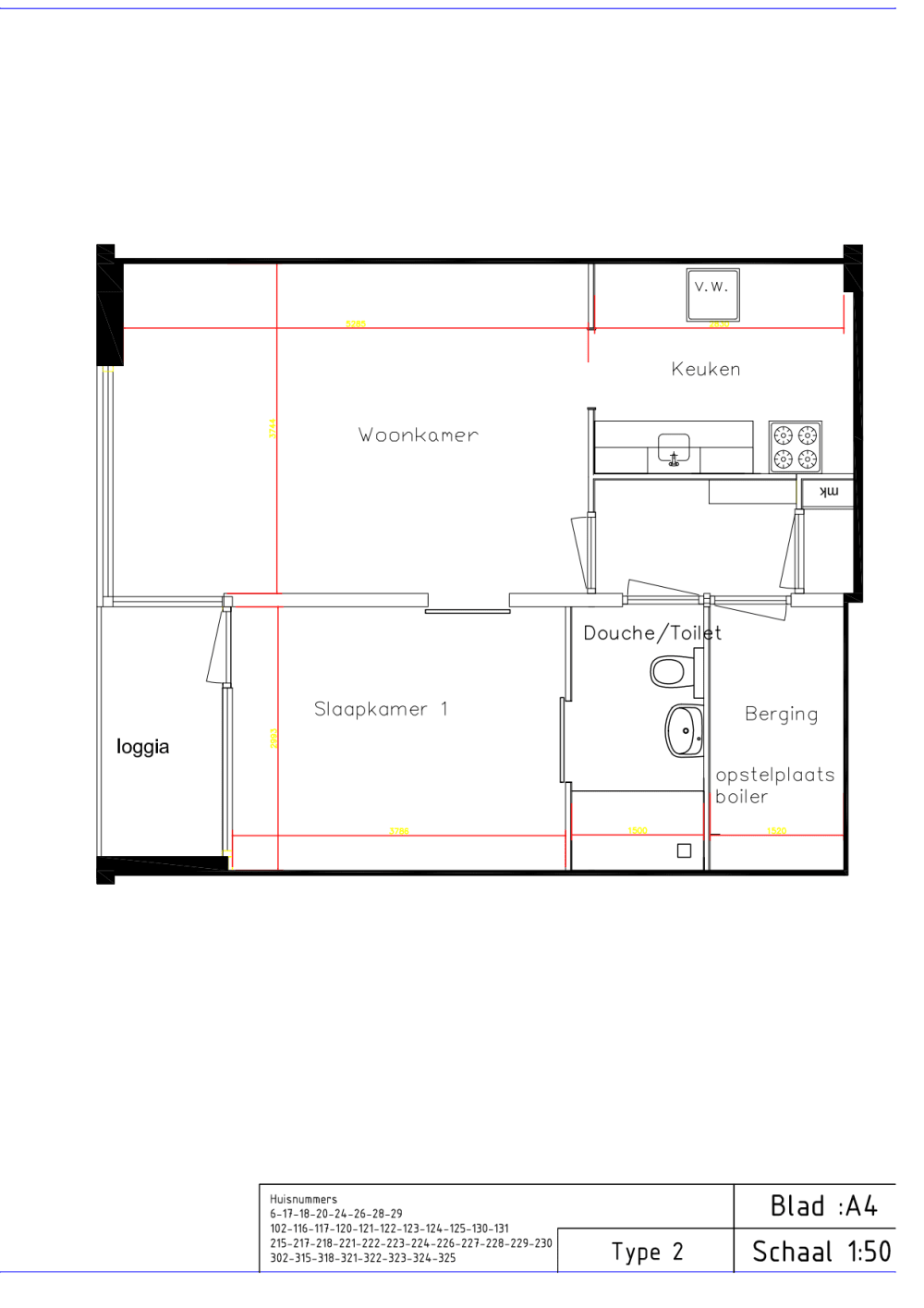
Oppervlakte:
45 m2
Kamers:
2
Slaapkamers:
1
Wachttijd:
(niet ingesteld)
Datum beschikbaar:
31 mrt 2026
Maximaal inkomen:
(niet ingesteld)
Status:
Gepubliceerd
Reageren

Omschrijving woning

Gelegen tussen de noordrand van Bodegraven, vlakbij het natuurgebied "De Meije", en het centrum van Bodegraven met voorzieningen zoals het winkelgebied, zwembad, sporthal, op loop- en fietsafstand openbaar vervoer (trein en bus).Indeling woningDe woning beschikt over 1 slaapkamer en bevindt zich op de 2e etage.Goed om te wetenIn de woning zit een aansluiting voor elektrisch koken (koken kan niet op gas).  De leeftijd van de aanvrager en medeaanvrager is groter of gelijk aan 65 jaar. Doorstromers genieten de voorrang.Let opHoudt u er rekening mee dat tijdens het tekenen van het contract ingelogd moet worden op de website van de Belastingdienst. Het inloggen vindt plaats op de laptop of vaste computer (op kantoor) van de betreffende medewerker. U kunt zelf inloggen met uw inloggegevens van uw DigiD. Deze moet u dan bij u hebben.

Kaart