Huurwoning Delft

Aletta Jacobsstraat 96, Delft

Korte samenvatting

Locatie
Delft
Huurprijs
€ 650,43
Type woning
Appartement
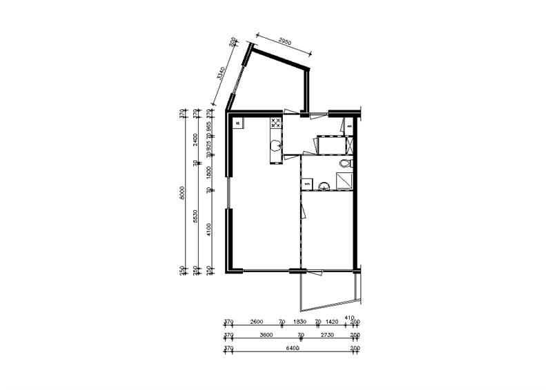
Oppervlakte:
51 m2
Kamers:
3
Slaapkamers:
2
Wachttijd:
(niet ingesteld)
Datum beschikbaar:
18 dec 2024
Maximaal inkomen:
€ 39.055,00
Status:
Verlopen

Omschrijving woning

_**Voorwaarden** :_ Er wordt voldaan aan de toewijzingsvoorwaarden; u woont minimaal 1 jaar in de huidige woning; er is geen sprake van huurachterstand en/of overlast; de huurprijs wordt opnieuw berekend en deze is passend; het inkomen is voldoende om de huur te voldoen; beide ruilkandidaten gaan de woning tenminste 1 jaar bewonen; er is sprake van een zwaarwichtig belang voor beide ruilkandidaten; er is aangetoond dat ten minste 6 maanden actief naar een woning is gezocht via het woonruimteverdeelsysteem; aanvraagformulier woningruil is volledig ingevuld en ondertekend door beide ruilkandidaten; schriftelijk akkoord woningruil van (beide) verhuurder(s) **Wat moet de ruilkandidaat overleggen** Het verzoek wordt alleen in behandeling genomen als de volgende gegevens zijn toegevoegd aan het aanvraagformulier voor woningruil: Nummer legitimatiebewijs (geldig paspoort, identiteitskaart of rijbewijs) van alle (mee)verhuizende personen; loonstroken en/of uitkeringsspecificaties van de laatste 3 maanden; jaaropgave van het afgelopen jaar; inkomensverklaring Belastingdienst (te downloaden via DigiD of telefonisch via 0800-0543); recente verhuurdersverklaring van uw huidige verhuurder; recent historisch uittreksel uit het bevolkingsregister. Is de woningruil **akkoord** , dan wordt er een nieuwe huurprijs vastgesteld en kan er een afspraak gemaakt worden voor het ondertekenen van de huurovereenkomst. Is de woningruil **niet akkoord** dan worden beide ruilkandidaten hiervan (en eventueel de andere verhuurder) door ons schriftelijk op de hoogte gesteld. Wordt zonder toestemming van Woonbron toch van woning geruild, dan zal een ontruimingsprocedure worden opgestart. **Wanneer is woningruil niet mogelijk?** Woningruil is niet mogelijk wanneer wij plannen hebben de woning te verkopen, renoveren, slopen of tijdelijk te verhuren.

Kaart