Huurwoning Delft

Meerkoetlaan 52, Delft

Korte samenvatting

Locatie
Delft
Huurprijs
€ 425,47
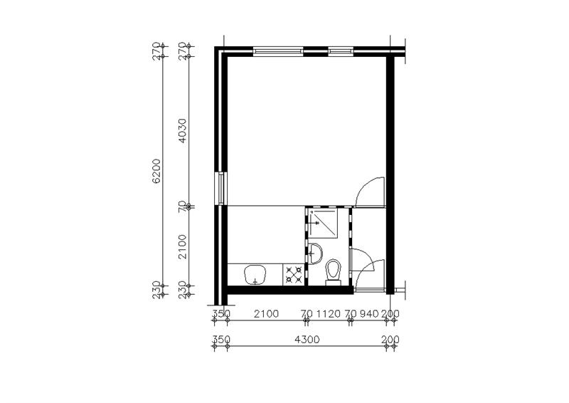
Type woning
Maisonnette
Oppervlakte:
24 m2
Kamers:
1
Slaapkamers:
0
Wachttijd:
(niet ingesteld)
Datum beschikbaar:
8 aug 2024
Maximaal inkomen:
€ 39.055,00
Status:
Verlopen

Omschrijving woning

Midden in de wijk ligt het Abtswoudsepark met verschillende recreatieve voorzieningen. Doordat alle uitvalswegen van Tanthof op de Kruithuisweg aantakken, is er een snelle autoverbinding naar rijksweg A13 en A4. Ook het openbaar vervoer van en naar Tanthof is goed. Tramlijn 1, die zijn eindhalte bij het Abtswoudse park heeft, zorgt voor een snelle verbinding naar Winkelcentrum De Hovenpassage, de binnenstad, het station en ook naar Den Haag en Scheveningen. Door de wijk heen loopt een busbaan. Voor bewoners uit Tanthof-oost is station Delft-zuid zelfs op loopafstand te bereiken. _**Voorzieningen in de buurt**_ Huisartsenpraktijken, tandartspraktijk, apotheken Peuterspeelzalen, basisscholen, buurthuis, kinderdagverblijven en buitenschoolse opvang aanwezig Een kleinschalig winkelcentrum in oost en west Speelvoorzieningen: aanwezig Sportfaciliteiten en speeltuin aanwezig Recreatie: Midden-Delfland, Abtswoudsepark, kinderboerderij en waterspeeltuin

Kaart