Huurwoning Delft

Oostblok 143, Delft

Korte samenvatting

Locatie
Delft
Huurprijs
€ 682,96
Type woning
Portiekwoning
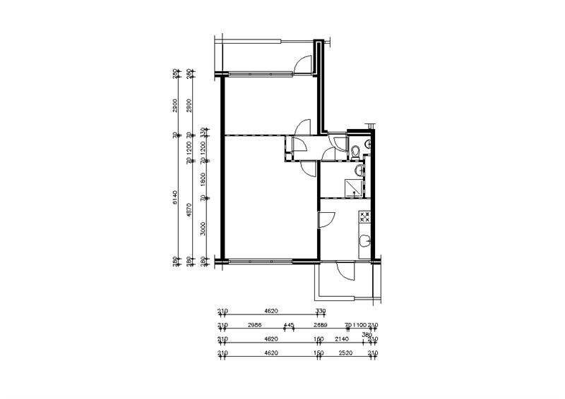
Oppervlakte:
53 m2
Kamers:
2
Slaapkamers:
1
Wachttijd:
(niet ingesteld)
Datum beschikbaar:
12 nov 2025
Maximaal inkomen:
€ 39.055,00
Status:
Verlopen

Omschrijving woning

Wie van rustig wonen houdt in een ontspannen omgeving met de levendigheid van de binnenstad binnen bereik, vindt hier zijn ideale stek. De wijk ligt aan de noordoostkant van Delft, tussen het recreatiegebied het Delftse Hout en de binnenstad. Je bent zo op de rijksweg A13 voor een snelle verbinding naar andere steden. **Voorzieningen in de buurt aanwezig:** Huisartsenpraktijken, tandartspraktijken, apotheek (Binnenstad of Wippolder), bejaardenhuis en verpleeghuis De Bieslandhof Basisscholen en speciaal onderwijs, peuterspeelzalen, kinderdagverblijven en buitenschoolse opvang Winkels voor de dagelijkse boodschappen Bewaakte gemeente speeltuin, zwem- en squashcentrum, sportpark Brasserskade Nabij recreatiegebied Het Delftse Hout, Hertenkamp, Kinderboerderij, Arboretum Heempark

Kaart