Huurwoning Dordrecht

Admiraalsplein 475, Dordrecht

Korte samenvatting

Locatie
Dordrecht
Huurprijs
€ 815,28
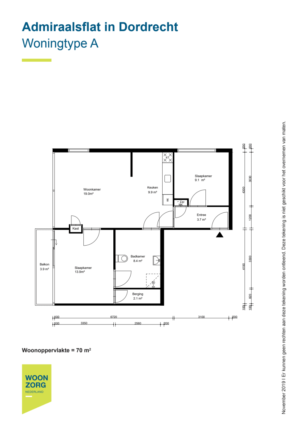
Type woning
Appartement
Oppervlakte:
56 m2
Kamers:
2
Slaapkamers:
1
Wachttijd:
(niet ingesteld)
Datum beschikbaar:
3 mrt 2026
Maximaal inkomen:
(niet ingesteld)
Status:
Gepubliceerd
Reageren

Omschrijving woning

Over het complexDe Admiraalsflat ligt in de wijk Wielwijk aan het Admiraalsplein in Dordrecht. U woont er in een levendige omgeving.  Het wooncomplex bestaat uit 110 ruime en lichte appartementen met 2 of 3 kamers. Er worden verschillende activiteiten georganiseerd in de ontmoetingsruimte. Ook is er een gezamenlijke tuin. De bushalte vindt u op 100 meter afstand. Op het Admiraalsplein zijn diverse winkels zoals supermarkten, bakker, apotheek, drogist en thuiszorgwinkel. Dit wooncomplex heeft een eigen bewonersconsulent die aanspreekpunt is voor alle bewoners van het wooncomplex.Over de woningenDe appartementen zijn 58 tot 64 m² groot. Ze hebben geen drempels en zijn geschikt voor mensen met een rollator. Voor bewoners in een rolstoel zijn er vier aangepaste woningen. Elke woning heeft een eigen (fietsen)berging.Belangrijk om te wetenHet wooncomplex komt in aanmerking voor verduurzaming.  In de servicekosten zitten tevens de kosten voor uw eigen verwarmingsverbruik. Er is geen scootmobielruimte op dit complex aanwezig.Waarom wilt u hier wonen?Vlakbij de winkels (2 min)Recreatieruimte aanwezigBerging aanwezigElektrisch kokenActieve bewonerscommissie

Kaart