Huurwoning Dordrecht

Eisingahof 70, Dordrecht

Korte samenvatting

Locatie
Dordrecht
Huurprijs
€ 637,00
Type woning
Appartement
Oppervlakte:
36 m2
Kamers:
2
Slaapkamers:
1
Wachttijd:
(niet ingesteld)
Datum beschikbaar:
2 apr 2026
Maximaal inkomen:
€ 39.055,00
Status:
Gepubliceerd
Reageren

Omschrijving woning

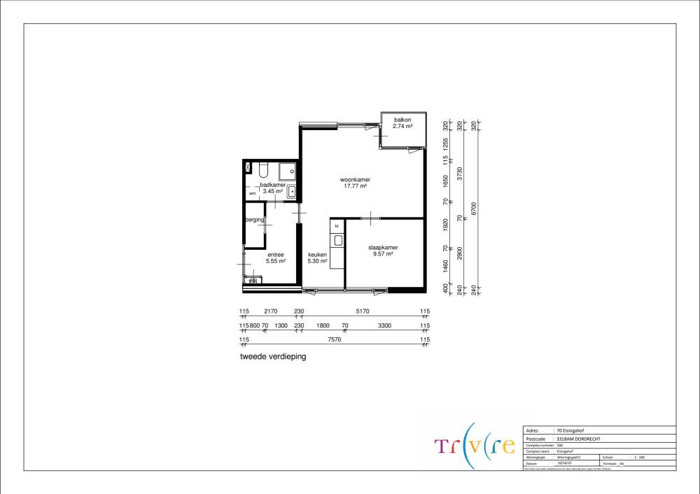
Jongerenwoning gelegen in de wijk Sterrenburg. Nabij uitvalswegen, winkels en openbaar vervoer.De woning heeft een open keuken en wordt elektrisch gekookt, er is een afgesloten toegangshal en verwarming via blokverwarming. De keuken en badkamer zijn gerenoveerd.Gezien de oppervlakte van deze woning, is de woning alleen geschikt voor 1 persoon. Aangezien de woning zich in een jongerencomplex bevindt, is de woning niet geschikt voor een huishouden met kinderen.Een kennismakingsgesprek in uw huidige woning maakt onderdeel uit van de uitgebreide intakeprocedure.Een onderdeel van de woningtoewijzing is een screening op overlast gevend en crimineel gedrag (op grond van de Wet Bijzondere Maatregelen Grootstedelijke Problematiek). Werkt u hier niet aan mee of is het resultaat van de screening negatief, dan wordt de woning niet aan u verhuurd.Wilt u reageren op deze woning, kijkt u dan eerst naar bijgevoegde plattegrond voor de woningindeling en de maten.De beschikbaarheidsdatum is onder voorbehoud.In verband met de jaarlijkse afrekening kan het voorschot van de servicekosten nog wijzigenLET OP! Controleer vooraf uw nieuwe termijnbedrag bij uw energieleverancier om onverwachte hoge kosten te voorkomen.

Kaart