Huurwoning Dordrecht

Maaskant-Erf 216, Dordrecht

Korte samenvatting

Locatie
Dordrecht
Huurprijs
€ 734,25
Type woning
Maisonnette
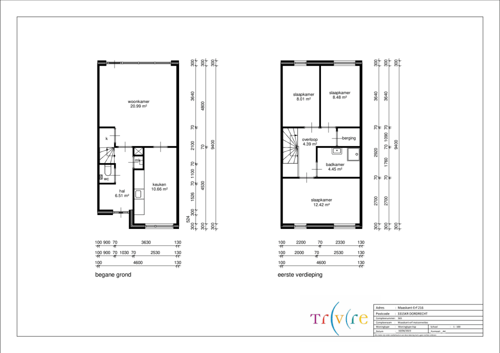
Oppervlakte:
65 m2
Kamers:
4
Slaapkamers:
3
Wachttijd:
(niet ingesteld)
Datum beschikbaar:
31 jan 2025
Maximaal inkomen:
€ 39.055,00
Status:
Verlopen

Omschrijving woning

Mooie maisonnette, bereikbaar via de begane grond. De slaapkamers op de 1e etage zijn bereikbaar via een vaste trap. De keuken, badkamer en toilet zijn gerenoveerd. Gelegen nabij winkelcentrum "de bieshof", openbaar vervoer en scholen.In verband met de jaarlijkse afrekening kan het voorschot van de servicekosten nog wijzigen.Wilt u reageren op deze woning, kijkt u dan eerst naar bijgevoegde plattegrond voor de woningindeling en de maten.LET OP! Controleer vooraf uw nieuwe termijnbedrag bij uw energieleverancier omonverwachte hoge kosten te voorkomen.

Kaart