Huurwoning Dordrecht

Nolensweg 92, Dordrecht

Korte samenvatting

Locatie
Dordrecht
Huurprijs
€ 756,50
Type woning
Appartement
Oppervlakte:
60 m2
Kamers:
4
Slaapkamers:
3
Wachttijd:
(niet ingesteld)
Datum beschikbaar:
9 feb 2026
Maximaal inkomen:
(niet ingesteld)
Status:
Gepubliceerd
Reageren

Omschrijving woning

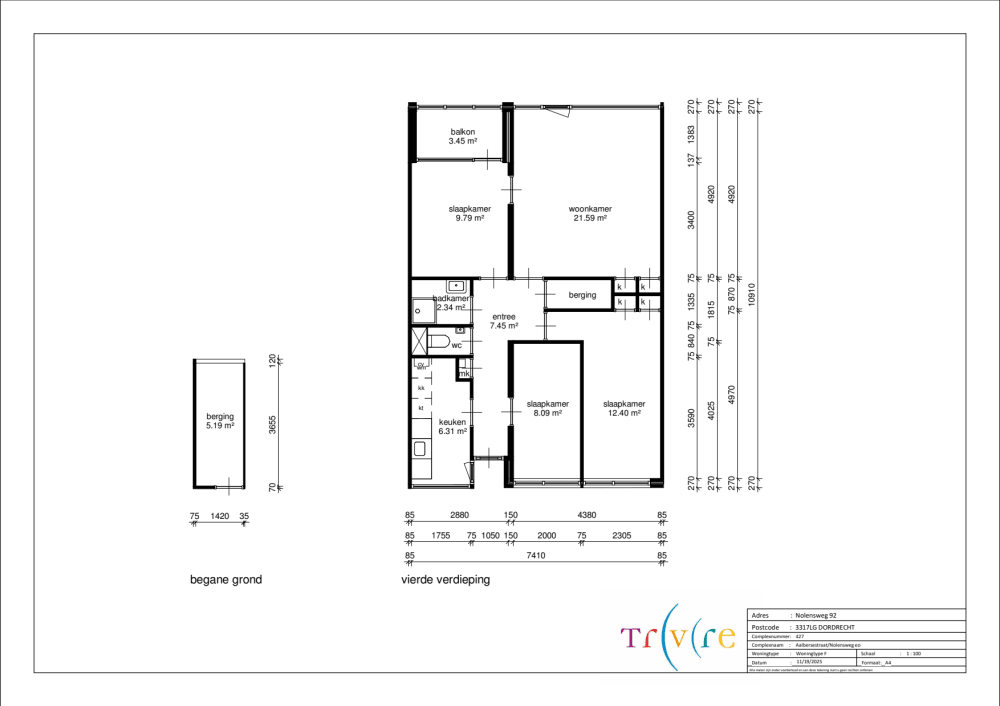
Mooie woning met drie slaapkamers, gesloten keuken met elektrische kookaansluiting, balkon en berging. Openbaar vervoer en winkels in de directe omgeving.Verduurzaming:Op dit moment is het verduurzamingsproject in dit complex vrijwel afgerond. Om de woningen in dit woongebouw klaar te maken voor de toekomst maken we de woningen gasloos. Het complex is aangesloten op het warmtenet van HVC. Het is niet meer mogelijk om op gas te koken. Meer informatie ontvangt u van de verhuurmakelaar als u definitief kandidaat wordt voor de woning.De woning wordt met voorkeur aangeboden aan kandidaten met een leeftijd van 55 jaar en ouder. Kandidaten met een leeftijd van 55 jaar en ouder gaan altijd voor. De kandidaat met de meeste punten krijgt deze woning aangeboden. Als er geen kandidaten van 55 jaar en ouder meer zijn, dan wordt er voor de woning niet meer geselecteerd op aantal punten, maar op leeftijd. Dat wil zeggen: wie 54 jaar is, gaat voor op iemand van 53 jaar. Heeft u inwonende minderjarige kinderen? Dan bieden wij u deze woning niet aan.De beschikbaarheidsdatum is onder voorbehoud.In verband met de jaarlijkse afrekening kan het voorschot van de servicekosten nog wijzigen.Wilt u reageren op deze woning, kijkt u dan eerst naar bijgevoegde plattegrond voor de woningindeling en de maten.LET OP! Controleer vooraf uw nieuwe termijnbedrag bij uw energieleverancier om onverwachte hoge kosten te voorkomen.

Kaart