Huurwoning Zoetermeer

Alferbos 2, Zoetermeer

Korte samenvatting

Locatie
Zoetermeer
Huurprijs
€ 731,94
Type woning
Appartement
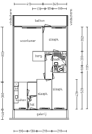
Oppervlakte:
74 m2
Kamers:
4
Slaapkamers:
3
Wachttijd:
(niet ingesteld)
Datum beschikbaar:
17 sep 2025
Maximaal inkomen:
€ 39.055,00
Status:
Verlopen

Omschrijving woning

Wonen in een heerlijk appartement met 3 slaapkamers, een ruim balkon en eigen berging in de onderbouw. De woning is gelegen in een goed onderhouden appartementencomplex in de groene wijk Meerzicht. Scholen, kinderopvang, winkelcentrum, het mooie Westerpark en uitvalswegen liggen op korte afstand. Het appartementencomplex beschikt over een afgesloten entree met intercom. Het appartement is te bereiken met de trap of met de lift. Het parkeren is gratis in de wijk. **U kookt elektrisch.**

Kaart