Huurwoning Zoetermeer

Laveibos 84, Zoetermeer

Korte samenvatting

Locatie
Zoetermeer
Huurprijs
€ 759,26
Type woning
Appartement
Oppervlakte:
76 m2
Kamers:
4
Slaapkamers:
3
Wachttijd:
(niet ingesteld)
Datum beschikbaar:
11 feb 2026
Maximaal inkomen:
(niet ingesteld)
Status:
Gepubliceerd
Reageren

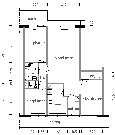
Omschrijving woning

Dit lichte, ruime en goed onderhouden 4 - kamer appartement met 3 ruime slaapkamers en een zonnig balkon is gelegen in de populaire wijk Meerzicht. Het appartementencomplex beschikt over een afgesloten entree met intercom. De woning is gunstig gelegen en op korte loopafstand van winkelcentrum Meerzicht, openbaar vervoer (Randstadrail halte Meerzicht), basisscholen en medisch dienstencentrum. **U kookt elektrisch.**

Kaart