Huurwoning Zoetermeer

Lemelerberg 55, Zoetermeer

Korte samenvatting

Locatie
Zoetermeer
Huurprijs
€ 932,93
Type woning
Eengezinswoning
Oppervlakte:
65 m2
Kamers:
4
Slaapkamers:
3
Wachttijd:
(niet ingesteld)
Datum beschikbaar:
14 jan 2026
Maximaal inkomen:
(niet ingesteld)
Status:
Gepubliceerd
Reageren

Omschrijving woning

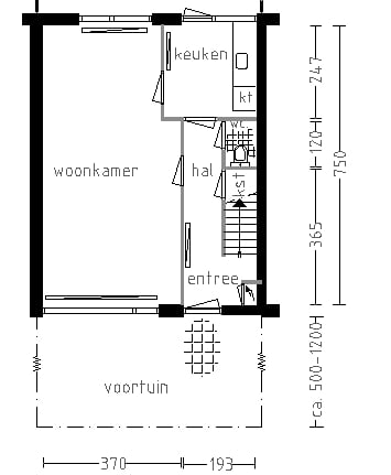
Dit is een ideale woning voor u en uw gezin! Een ruime woning met 3 slaapkamers, badkamer, keuken en een woonkamer met vrij uitzicht over een diepe achtertuin. De zolder is te bereiken d.m.v. een vlizotrap. De woning is gelegen in de wijk Meerzicht-West en is redelijk tot goed bereikbaar met veel voorzieningen in de buurt. De supermarkten en treinstation is op loopstand. Dit is een kindvriendelijke buurt met veel speelvelden waar uw kinderen buiten kunnen spelen. Het mooie en groenrijke Westerpark is op loopafstand te bereiken. Daarnaast is er veel parkeergelegenheid in de wijk. Parkeren in de wijk is gratis. Op de Lemelerberg wordt een verduurzamingsproject uitgevoerd. Door op deze woning te reageren, laat u weten zich ervan bewust te zijn dat er na het aangaan van de huurovereenkomst in de toekomst werkzaamheden aan de woning en in de omgeving worden uitgevoerd waar u (over)last van kunt ervaren.

Kaart