Toggle navigation
Provincies
Noord-Brabant
Zuid-Holland
Noord-Holland
Gelderland
Limburg
Overijssel
Utrecht
Groningen
Friesland
Drenthe
Zeeland
Flevoland
Vlaams Gewest
Plaatsen
Veenendaal
Amsterdam
Utrecht
Den Haag
Zwolle
Breda
Harderwijk
Groningen
Leiden
Leeuwarden
Winschoten
Tilburg
Noordwijk
Stadskanaal
Ermelo
Home
Home
Overzicht sociale huurwoningen
Zuid-Holland
Zoetermeer
Paletsingel 87
Huurwoning Zoetermeer
Paletsingel 87,
Zoetermeer
Previous
Next
Korte samenvatting
Locatie
Zoetermeer
Huurprijs
€ 713,02
Type woning
Appartement
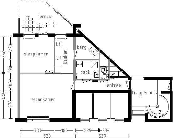
Oppervlakte:
45 m
2
Kamers:
2
Slaapkamers:
1
Wachttijd:
(niet ingesteld)
Datum beschikbaar:
4 mrt 2026
Maximaal inkomen:
€ 39.055,00
Status:
Verlopen
Omschrijving woning
Leuke mooie woning dichtbij openbaar vervoer, winkelcentrum en gezondheidscentrum.
Kaart