Huurwoning Zoetermeer

Poortugaalstraat 157, Zoetermeer

Korte samenvatting

Locatie
Zoetermeer
Huurprijs
€ 713,02
Type woning
Appartement
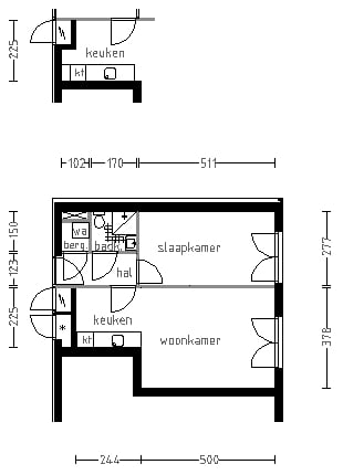
Oppervlakte:
42 m2
Kamers:
2
Slaapkamers:
1
Wachttijd:
(niet ingesteld)
Datum beschikbaar:
3 jan 2026
Maximaal inkomen:
€ 39.055,00
Status:
Gepubliceerd
Reageren

Omschrijving woning

Leuke woning in een jongerencomplex in de gewilde wijk Oosterheem. De woning is voorzien van een open keuken waar u elektrisch kookt. Daarnaast heeft u een ruime slaapkamer en een eigen berging. Een frans balkon is onderdeel van de woning. Het parkeren is gratis in de wijk. De woning is gelegen in de buurt van randstadrail en winkels. **Wanneer u zwanger bent en/of kind(eren) heeft komt u niet in aanmerking voor deze woning.**

Kaart