Huurwoning Zoetermeer

Sardinië 101, Zoetermeer

Korte samenvatting

Locatie
Zoetermeer
Huurprijs
€ 682,96
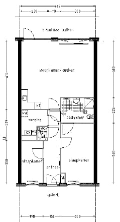
Type woning
Benedenwoning
Oppervlakte:
67 m2
Kamers:
3
Slaapkamers:
2
Wachttijd:
(niet ingesteld)
Datum beschikbaar:
14 nov 2025
Maximaal inkomen:
€ 39.055,00
Status:
Verlopen

Omschrijving woning

Leuk appartement komt vrij aan de rand van Oosterheem. De woning beschikt over een semi open keuken en is gelegen in een kindvriendelijke omgeving, nabij verschillende basisscholen en kinderopvang, kinderboerderij, het natuurgebied Bentwoud. Ook het uitgebreide winkelcentrum Oosterheem, Randstadrailstation en gezondheidscentrum bevinden zich op loopafstand.

Kaart