Huurwoning Zwijndrecht

P.J. Oudplein 10, Zwijndrecht

Korte samenvatting

Locatie
Zwijndrecht
Huurprijs
€ 885,40
Type woning
Appartement
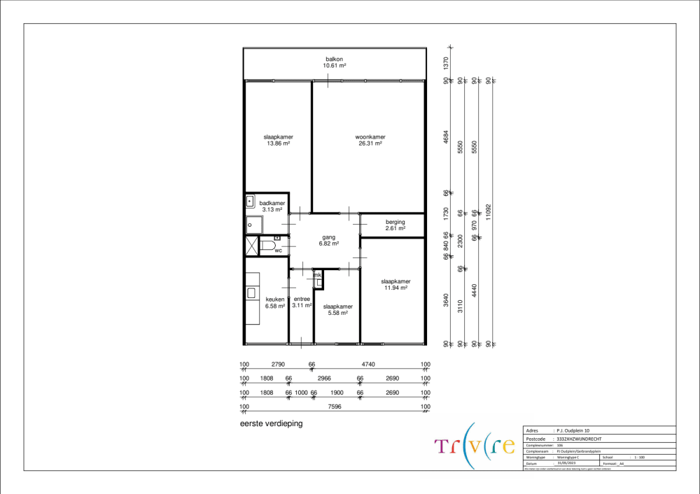
Oppervlakte:
67 m2
Kamers:
4
Slaapkamers:
3
Wachttijd:
(niet ingesteld)
Datum beschikbaar:
21 apr 2026
Maximaal inkomen:
(niet ingesteld)
Status:
Gepubliceerd
Reageren

Omschrijving woning

Ruim appartement met drie slaapkamers, een gesloten keuken met elektrisch koken, een ruim balkon en een berging op de begane grond.Binnen het complex is een lift aanwezig, er is een afgesloten toegangshal en videofoon. De woning heeft HR beglazing en aan de andere zijde drievoudig glas, mechanische ventilatie en een energielabel A. De woning wordt verwarmd middels blokverwarming.De woning is goed bereikbaar met veel voorzieningen in de buurt. Op loopafstand van het winkelcentrum Walburg met genoeg voorzieningen zoals supermarkten en diverse winkels. Daarnaast is de dichtstbijzijnde uitvalsweg in de nabije omgeving op slechts 4 minuten rijden.Een kennismakingsgesprek in uw huidige woning maakt onderdeel uit van de uitgebreide intakeprocedure.Wilt u reageren op deze woning, kijkt u dan eerst naar bijgevoegde plattegrond voor de woningindeling en de maten. De vertrekkende huurder biedt spullen ter overname aan.De beschikbaarheidsdatum is onder voorbehoud.In verband met de jaarlijkse afrekening kan het voorschot van de servicekosten nog wijzigen.LET OP! Controleer vooraf uw nieuwe termijnbedrag bij uw energieleverancier om onverwachte hoge kosten te voorkomen.

Kaart