Huurwoning Zwijndrecht

Tomatenplein 179, Zwijndrecht

Korte samenvatting

Locatie
Zwijndrecht
Huurprijs
€ 856,51
Type woning
Portiekwoning
Oppervlakte:
56 m2
Kamers:
3
Slaapkamers:
2
Wachttijd:
(niet ingesteld)
Datum beschikbaar:
29 okt 2025
Maximaal inkomen:
(niet ingesteld)
Status:
Verlopen

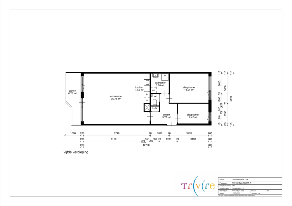
Omschrijving woning

Driekamer appartement gelegen in het centrum van Zwijndrecht. Station Zwijndrecht op loopafstand en scholen, openbaar vervoer en winkels in directe omgeving.De woning heeft een open keuken met elektrische kookaansluiting, afgesloten toegangshal, balkon en eigen berging op de begane grond. Verwarming middels blokverwarming. Keuken en toilet worden gerenoveerd.Laminaat is ter overname.In dit complex heeft u te maken met VVE beheer, dit betekent dat er zowel huurders als kopers wonen. De warmwatervoorziening geschiedt door middel van een huurboiler. De kosten zijn voor rekening huurder. Meer informatie kan opgevraagd worden bij de leverancier.Wilt u reageren op deze woning, kijkt u dan eerst naar bijgevoegde plattegrond voor de woningindeling en de maten.De beschikbaarheidsdatum is onder voorbehoud.In verband met de jaarlijkse afrekening kan het voorschot van de servicekosten nog wijzigen.LET OP! Controleer vooraf uw nieuwe termijnbedrag bij uw energieleverancier om onverwachte hoge kosten te voorkomen.

Kaart